Please try to include as much detail as possible.
Are you interested in this property? Contact the landlord here instead.
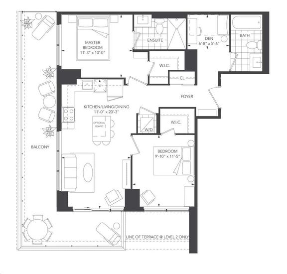
2 Bedrooms
-
Apartment
861 ft²
Copied